Leave a Message

By providing your contact information to Jooma Homes LLC, your personal information will be processed in accordance with Jooma Homes LLC's Privacy Policy. By checking the box(es) below, you consent to receive communications regarding your real estate inquiries and related marketing and promotional updates in the manner selected by you. For SMS text messages, message frequency varies. Message and data rates may apply. You may opt out of receiving further communications from Jooma Homes LLC at any time. To opt out of receiving SMS text messages, reply STOP to unsubscribe.

Thank you for your message. We will be in touch with you shortly.

Explore Our Properties

Property Description

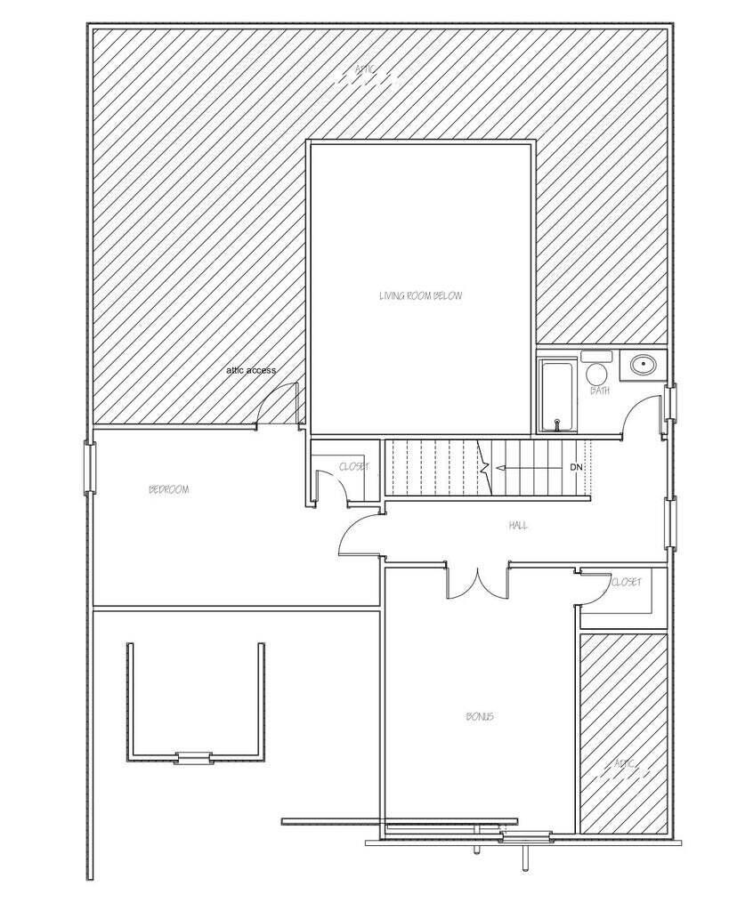
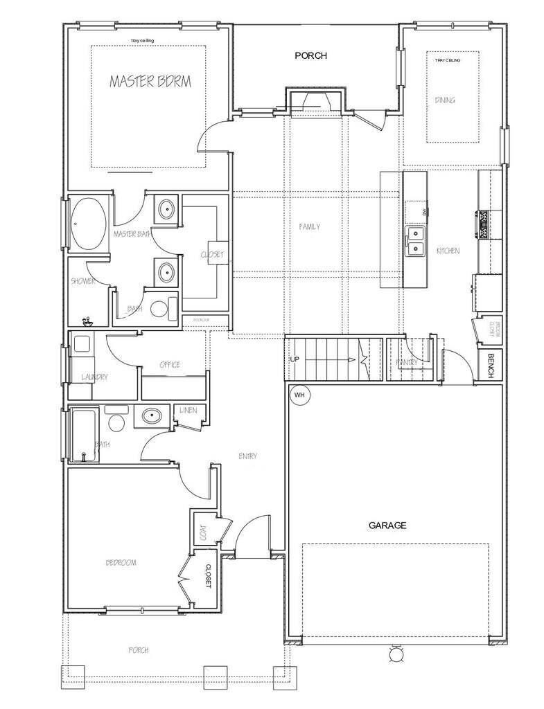
Back by popular demand. Welcome to more new construction in Grasshopper Estates. Coming in on more than a half acre of sweet privacy with our favorite plan the Shadow Gate. This home is breaking ground now and we welcome you to add your own personal touch and customize your next new home. Upgrades available now. The floor plans are attached to this listing and we are happy to share our Interior Designers lookbook for all the amazing features you have to look forward too. Grasshopper Estates is conveniently located 20 minutes to Ooltewah and a easy drive of 30 minutes to Downtown Chattanooga. Peaceful country living close to amenities. Memorize your new address today. 7570 Peyton Rise Way Georgetown TN 37336 HOME Owner/Agent- Personal Interest Owner/Agent- Personal Interest

Overview

Property Status
Sold
Lot Size
0.61 Acres
MLS ID
2528326
Property Type
Residential
Year Built
2024

Features & Amenities

Stories
2
Garage Spaces
2.0
Water Source
Public
Utilites
Water Available
Roof
Other
Lot Features
Level, Other
Parking
Garage Door Opener, Garage Faces Front
Heat Type
Central, Electric
Air Conditioning
Central Air, Electric
Laundry Room
Electric Dryer Hookup, Gas Dryer Hookup, Washer Hookup
Fireplace
Living Room, Gas
Appliances
Microwave, Dishwasher
Other Interior Features
Open Floorplan, Walk-In Closet(s), Primary Bedroom Main Floor
Sewer
Septic Tank
Security Features
Smoke Detector(s)
Elementary School
Snow Hill Elementary School
Middle School
Hunter Middle School
High School
Central High School
Sales Price
$415,000
Real Estate Tax
$225/yr
HOA
$150/yr

Downloads

7570 Peytons Rise Way Unit: Lot #60

Schedule a Tour

We would love to help you see this beautiful home! As a full-service brokerage, we can help you tour. Please submit an offer, and answer questions about the buying process.

Thank you

for your interest in 7570 Peytons Rise Way Unit: Lot #60, Georgetown, TN 37336

7570 Peytons Rise Way Unit: Lot #60
Navigate
 

I'm Interested In

7570 Peytons Rise Way Unit: Lot #60

or
  • CallKelly Jooma

    License #TN 322302 | GA 379723

    (423) 432-8121
  • Featured Listings

    • 4545 Split Rail Way, Lot #1142 For Sale

      $1,680,000

      4545 Split Rail Way, Lot #1142, Guild, TN 37340

      • 4 Beds
      • 4 Baths
      • 4,185 Sq.Ft.
    • 3609 Prospect Church Road, Lot #2 For Sale

      $1,650,000

      3609 Prospect Church Road, Lot #2, Apison, TN 37302

      • 4 Beds
      • 4 Baths
      • 4,009 Sq.Ft.
    • 3741 Split Rail Way, Lot #1124 For Sale

      $1,350,000

      3741 Split Rail Way, Lot #1124, Guild, TN 37340

      • 4 Beds
      • 3 Baths
      • 3,235 Sq.Ft.
    • 8743 Palamon Place, Lot #15 For Sale

      $1,185,000

      8743 Palamon Place, Lot #15, Ooltewah, TN 37363

      • 4 Beds
      • 4 Baths
      • 3,630 Sq.Ft.
    • 8063 Sir Oliphant Way, Lot #28 For Sale

      $998,000

      8063 Sir Oliphant Way, Lot #28, Ooltewah, TN 37363

      • 3 Beds
      • 4 Baths
      • 3,065 Sq.Ft.
    • 8163 Sir Oliphant Way, Lot #14 Pending

      $895,000

      8163 Sir Oliphant Way, Lot #14, Ooltewah, TN 37363

      • 3 Beds
      • 4 Baths
      • 2,700 Sq.Ft.
    • 108 Walker Brow Ridge Road NW Pending

      $819,900

      108 Walker Brow Ridge Road NW, Cleveland, TN 37312

      • 4 Beds
      • 3 Baths
      • 2,685 Sq.Ft.
    • 108 Walker Brow Ridge Road, NW Active Under Contract

      $819,900

      108 Walker Brow Ridge Road, NW, Cleveland, TN 37312

      • 4 Beds
      • 3 Baths
      • 2,685 Sq.Ft.
    • 8721 Palamon Place, Lot #17 For Sale

      $799,990

      8721 Palamon Place, Lot #17, Ooltewah, TN 37363

      • 3 Beds
      • 4 Baths
      • 2,726 Sq.Ft.
    • 8112 Sir Oliphant Way, Lot #32 For Sale

      $750,000

      8112 Sir Oliphant Way, Lot #32, Ooltewah, TN 37363

      • 3 Beds
      • 3 Baths
      • 2,669 Sq.Ft.
    • 8126 Sir Oliphant Way, Lot #33 For Sale

      $675,000

      8126 Sir Oliphant Way, Lot #33, Ooltewah, TN 37363

      • 3 Beds
      • 3 Baths
      • 2,296 Sq.Ft.
    • 3031 Weatherwood Trail For Sale

      $670,000

      3031 Weatherwood Trail, Apison, TN 37302

      • 5 Beds
      • 3 Baths
      • 2,950 Sq.Ft.
    • 8097 Sir Oliphant Way, Lot #25 For Sale

      $669,900

      8097 Sir Oliphant Way, Lot #25, Ooltewah, TN 37363

      • 3 Beds
      • 3 Baths
      • 2,525 Sq.Ft.
    • 8735 Palamon Place, Lot #16 For Sale

      $649,990

      8735 Palamon Place, Lot #16, Ooltewah, TN 37363

      • 3 Beds
      • 2 Baths
      • 2,000 Sq.Ft.
    • 7012 Ron Road For Sale

      $615,000

      7012 Ron Road, Ooltewah, TN 37363

      • 3 Beds
      • 3 Baths
      • 2,470 Sq.Ft.
    • 2290 Red Tail Lane Pending

      $599,000

      2290 Red Tail Lane, Chattanooga, TN 37421

      • 6 Beds
      • 4 Baths
      • 3,775 Sq.Ft.
    • 8089 Sir Oliphant Way, Lot #26 Pending

      $565,000

      8089 Sir Oliphant Way, Lot #26, Ooltewah, TN 37363

      • 3 Beds
      • 3 Baths
      • 2,064 Sq.Ft.
    • 7452 Peytons Rise Way, Lot #52 For Sale

      $495,000

      7452 Peytons Rise Way, Lot #52, Georgetown, TN 37336

      • 3 Beds
      • 3 Baths
      • 2,150 Sq.Ft.
    • 7457 Peytons Rise Way For Sale

      $495,000

      7457 Peytons Rise Way, Georgetown, TN 37336

      • 3 Beds
      • 3 Baths
      • 2,110 Sq.Ft.
    • 7457 Peytons Rise Way For Sale

      $495,000

      7457 Peytons Rise Way, Georgetown, TN 37336

      • 3 Beds
      • 3 Baths
      • 2,110 Sq.Ft.
    • 7585 Peytons Rise Way, Lot #29 For Sale

      $485,000

      7585 Peytons Rise Way, Lot #29, Georgetown, TN 37336

      • 3 Beds
      • 3 Baths
      • 1,980 Sq.Ft.
    • 7387 Gamble Road, Lot #4, Georgetown Pending

      $479,000

      7387 Gamble Road, Lot #4, Georgetown, TN 37336

      • 3 Beds
      • 2 Baths
      • 2,159 Sq.Ft.
    • 10907 Dolly Pond Road Pending

      $439,900

      10907 Dolly Pond Road, Ooltewah, TN 37363

      • 3 Beds
      • 2 Baths
      • 1,722 Sq.Ft.
    • 6583 Long Horn Street For Sale

      $439,000

      6583 Long Horn Street, Birchwood, TN 37308

      • 3 Beds
      • 3 Baths
      • 2,200 Sq.Ft.
    • 7592 Grasshopper Road For Sale

      $390,000

      7592 Grasshopper Road, Georgetown, TN 37336

      • 3 Beds
      • 3 Baths
      • 2,138 Sq.Ft.
    • 8476 Standifer Gap Road For Sale

      $385,000

      8476 Standifer Gap Road, Chattanooga, TN 37421

      • 3 Beds
      • 3 Baths
      • 1,912 Sq.Ft.
    • 706 Swansons Ridge Road For Sale

      $365,000

      706 Swansons Ridge Road, Chattanooga, TN 37421

      • 3 Beds
      • 2 Baths
      • 2,084 Sq.Ft.
    • 47 Spring Place Drive For Sale

      $332,500

      47 Spring Place Drive, Fort Oglethorpe, GA 30742

      • 4 Beds
      • 2 Baths
      • 1,696 Sq.Ft.
    • 1881 Three Notch Road Pending

      $275,000

      1881 Three Notch Road, Ringgold, GA 30736

      • 3 Beds
      • 2 Baths
      • 1,308 Sq.Ft.
    • 111 Passons Road Pending

      $213,000

      111 Passons Road, Chattanooga, TN 37415

      • 3 Beds
      • 1 Bath
      • 1,134 Sq.Ft.
    • 10910 Dolly Pond Road For Sale

      $139,000

      10910 Dolly Pond Road, Ooltewah, TN 37363

    • 0 Old Tasso Place NE For Sale

      $25,000

      0 Old Tasso Place NE, Cleveland, TN 37312

    • 8097 Sir Oliphant Way, Lot #25 For Lease

      $3,700/mo

      8097 Sir Oliphant Way, Lot #25, Ooltewah, TN 37363

      • 3 Beds
      • 3 Baths
      • 2,525 Sq.Ft.
    View All

    Follow Us On Instagram